• Image 1
  • Image 2
  • Image 3
  • Image 4
  • Image 5
  • Image 6

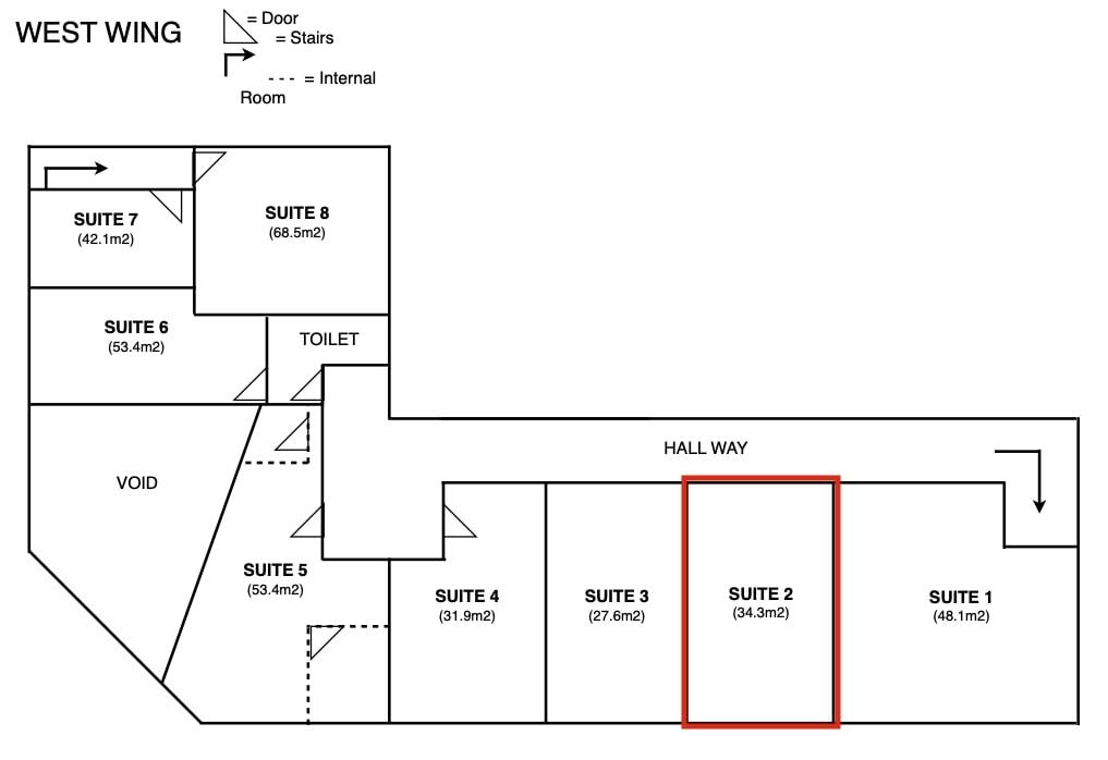
Coomera Suite 2 West 2 Fortune Street

$ 1 460 + GST** PCM

 

  • Property ID 21562294
  • Building Size 34.3 sqm

From: Now

FOR LEASE - QUALITY OFFICE IN FORTUNE PLACE - A PERFECT LOCATIONFOR LEASE

Situated near Coomera Police Station, FORTUNE PLACE enjoys a strategic location with exposure to the M1.

The site comprises thoughtfully designed offices that balance aesthetics and functionality on the upper level and shop fronts on the lower. Understanding the varying needs of businesses, the suites offer common areas for clients to mingle and shared essential services such as a serviced kitchen and bathroom facilities.

Ensuring the safety and security of your workspace with back-to-base alarm monitoring is just one example of the inclusions that make this site ideal for small businesses wanting hassle-free professional office opportunities.

Air Conditioning, Serviced Fire equipment, Power and Waste services, and easy connection to the NBN are all included in the rental.

We are pleased to offer this well-presented office suite.

- 34.3 SQM* quality office
- Located on the upper level
- Peace of mind with back-to-base alarm and nightly patrols included in rental
- Air conditioned and carpeted throughout
- Phone and data networking
- Shared kitchen & bathroom facilities
- Easy access to M1 North and Southbound

*Approximate **If Applicable

DISCLAIMER: Every effort has been made to ensure the accuracy of the information contained in this listing; however, no warranty is given, and prospective transactions should rely on their enquiries. Photographs, plans, and descriptions are for illustrative purposes only and may not reflect the current condition of the property. Prices and property availability are subject to change without notice. This listing does not constitute legal, financial, or real estate advice and is not a substitute for professional advice specific to your circumstances. Interested parties should obtain independent legal and financial advice before proceeding with any transactions.

Property Contact

Your Details
Your Enquiry
  1. Please describe how we can be of assistance to you.

  2.  

    Would you like to join our mail list?

Submit
Let's Talk

FOR FURTHER INFORMATION... REGISTER TODAY!